Conteneur 35m2 salle de bain cuisine 2 x chambre 6 x 5,8m
7500,00 €Le prix actuel est : 7500,00 €. Le prix initial était : 12500,00 €.
Description du module combiné de 35 m²
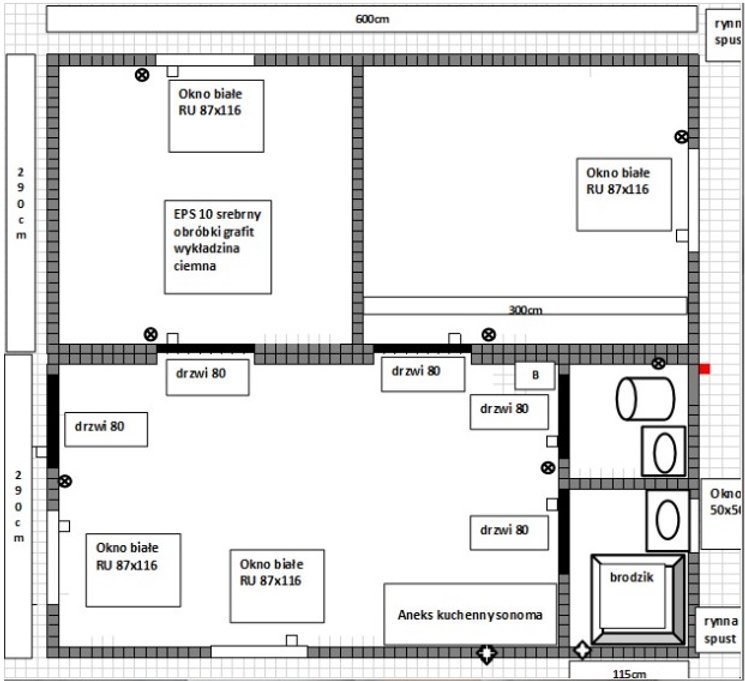
Ce complexe de 2 conteneurs combinés de 35 m² est conçu pour offrir un espace de vie pratique, durable, et facilement transportable. Il est adapté pour une utilisation tout au long de l’année, avec une isolation efficace et des équipements modernes. Chaque module est construit à partir de panneaux sandwich de haute qualité, garantissant une excellente isolation thermique et un faible entretien. Il comprend une salle de bain avec WC, une cuisine, une salle à manger, et deux chambres, le tout bien équipé pour répondre aux besoins quotidiens.
Caractéristiques principales
Isolation toute l’année : Les modules sont constitués de panneaux sandwich qui assurent une isolation optimale, qu’il s’agisse de conditions hivernales ou estivales.
Installations complètes : Équipés de systèmes de ventilation, d’électricité, d’eau et d’égouts, ces conteneurs offrent toutes les commodités modernes.
Durabilité : Fabriqués à partir de matériaux de haute qualité, les panneaux sandwich sont robustes et ne nécessitent pas d’entretien.
Mobilité : Le conteneur est conçu pour être déplacé et transporté facilement, idéal pour des projets évolutifs ou temporaires.
Dimensions
Superficie totale : 35 m²
Dimensions de chaque module :
Longueur extérieure : 6,0 m
Largeur extérieure : 2,9 m
Hauteur intérieure : 2,6 m à 2,4 m
Équipements inclus
Salle de bain
Installation électrique :
2 prises
1 interrupteur
Éclairage LED 1 pièce
Ventilation : 1 ventilateur.
Sanitaires :
Receveur de douche avec rideau (90×90 cm).
Lavabo avec meuble (50 cm).
Branchement pour machine à laver.
Portes : Porte intérieure en acier blanc (80 cm).
Fenêtre : Fenêtre avec trappe (50×50 cm).
Toilettes
WC : Toilettes compactes modernes.
Chauffe-eau : Chauffe-eau électrique de 50 L.
Portes : Porte intérieure en acier blanc (80 cm).
Cuisine + Salle à manger
Installation électrique :
3 phases
3 prises
1 interrupteur
Éclairage LED 1 pièce
Ventilation : 1 ventilateur.
Sanitaires : Évier avec batterie, raccordé à l’eau et aux égouts.
Meubles : Ensemble de 4 armoires “Sonoma dab” avec évier.
Électroménager : Réfrigérateur sous comptoir inclus.
Portes : Porte intérieure en acier blanc (80 cm).
Fenêtre : Fenêtre PVC UR (110×110 cm).
Chauffage : Chauffage électrique inclus.
Chambre 1
Installation électrique :
2 prises
1 interrupteur
Éclairage LED 1 pièce
Portes : Porte intérieure en acier (80 cm).
Fenêtre : Fenêtre PVC UR (80×110 cm).
Chauffage : Chauffage électrique inclus.
Chambre 2
Installation électrique :
2 prises
1 interrupteur
Éclairage LED 1 pièce
Portes : Porte intérieure en acier (80 cm).
Fenêtre : Fenêtre PVC UR (80×110 cm).
Chauffage : Chauffage électrique inclus.
Spécifications techniques
Construction : Structure en panneaux sandwich (feuille-panneau en polystyrène) pour une isolation et une solidité optimales.
Murs, toiture et plancher : Panneau sandwich de 100 mm d’épaisseur avec une âme en polystyrène, offrant une transmission thermique de 0,38 W/m²K.
Toiture : À simple pente pour une évacuation efficace de l’eau.
Plancher : Composé d’un panneau sandwich + OSB de 15 mm et recouvert d’un revêtement en PVC de 2,2 mm pour un sol confortable et résistant.
Portes extérieures : En acier, isolées, de dimensions 80 cm de largeur et 200 cm de hauteur.
Portes intérieures : En acier blanc pour une durabilité accrue et une finition élégante.
Avantages
Prêt à l’emploi : Ce conteneur est entièrement équipé pour offrir tout le confort nécessaire à la vie quotidienne.
Isolation optimale : Grâce aux panneaux sandwich de 100 mm, la transmission thermique est minimisée, garantissant des économies d’énergie et un confort constant, peu importe la saison.
Durable et sans entretien : Les matériaux utilisés sont robustes et conçus pour durer sans nécessiter de maintenance régulière.
Facilité de transport : Sa conception permet un déplacement et une installation faciles, que ce soit pour un usage temporaire ou permanent.
Ce module combiné de 35 m² est une solution idéale pour un espace de vie confortable, durable et bien équipé, offrant une flexibilité maximale pour des besoins de logement ou d’installation temporaire avec toutes les commodités nécessaires.





















